https://arcovara.ee/342687
Müüa maja Aruküla tee 95, Jüri alevik, Rae vald, Harju maakond
Detailid
| ID: | 342687 | www.arcovara.ee/342687 |
| Aadress: | Aruküla tee 95, Jüri alevik, Rae vald, Harju maakond |
| Tubade arv: | 4 |
| Üldpind: | 158.00 m² |
| Kinnistu suurus: | 2 362.00 m² |
| Energiaklass: | B |
| Tehingu liik: | Müüa |
| Objekti tüüp: | Maja |
| Muu: | Parkett, Pakettaknad, Metsa läheduses, Tsentraalne vesi, Naabrivalve, Uus kanalisatsioon, Kõrged laed, Garderoob |
| Korruste arv: | 1 |
| Ehitusaasta: | 2023 |
| Objekti staatus: | Uus ehitis |
| Objekti tüüp: | Kinnisasi |
| Katastri number: | 65301:003:1072 |
| Hoone struktuuri tüüp: | Kivi |
| Kanalisatsioon: | Tsentraalne |
| Küte: | Maaküte |
Vaata videotuuri -> võtmed kätte kohe peale notarit!
Maja Vaata ka videot Lisa lemmikutesseHind
| Hind | 459 000 € |
| m² hind | 2905.1 € |
Kirjeldus
TULE MINUGA VIDEOTUURILE:
https://youtu.be/zgZmFBimAE8
NB! ANNA TEADA ENDALE SOBIV AEG JA LÄHME KOOS VAATAMA!
KIVIMAJA - MAAKÜTE - KASUTUSLUBA - HINDAMISAKT
Müüa väga hea asukohaga 2024 valminud maaküttega kivimaja kvaliteetse valtsplekk-katusega.
Maja planeering on avar ja valgusküllane.
Majal on kasutusluba ja viimati tehtud hindamisakti väärtus oli 444 000€
HIND SISALDAB:
• Aruküla tee 95 kinnistut (elamumaa 1203m2) koos majaga;
• Lisaks kõrvalkinnistu Aruküla tee 95A (1159m2) ehk kokku on krunt 2362m2;
• Haljastust: muru ja umbes 300 elupuud ümber kahe kinnistu;
• Auto liugvärav + jalgvärav.
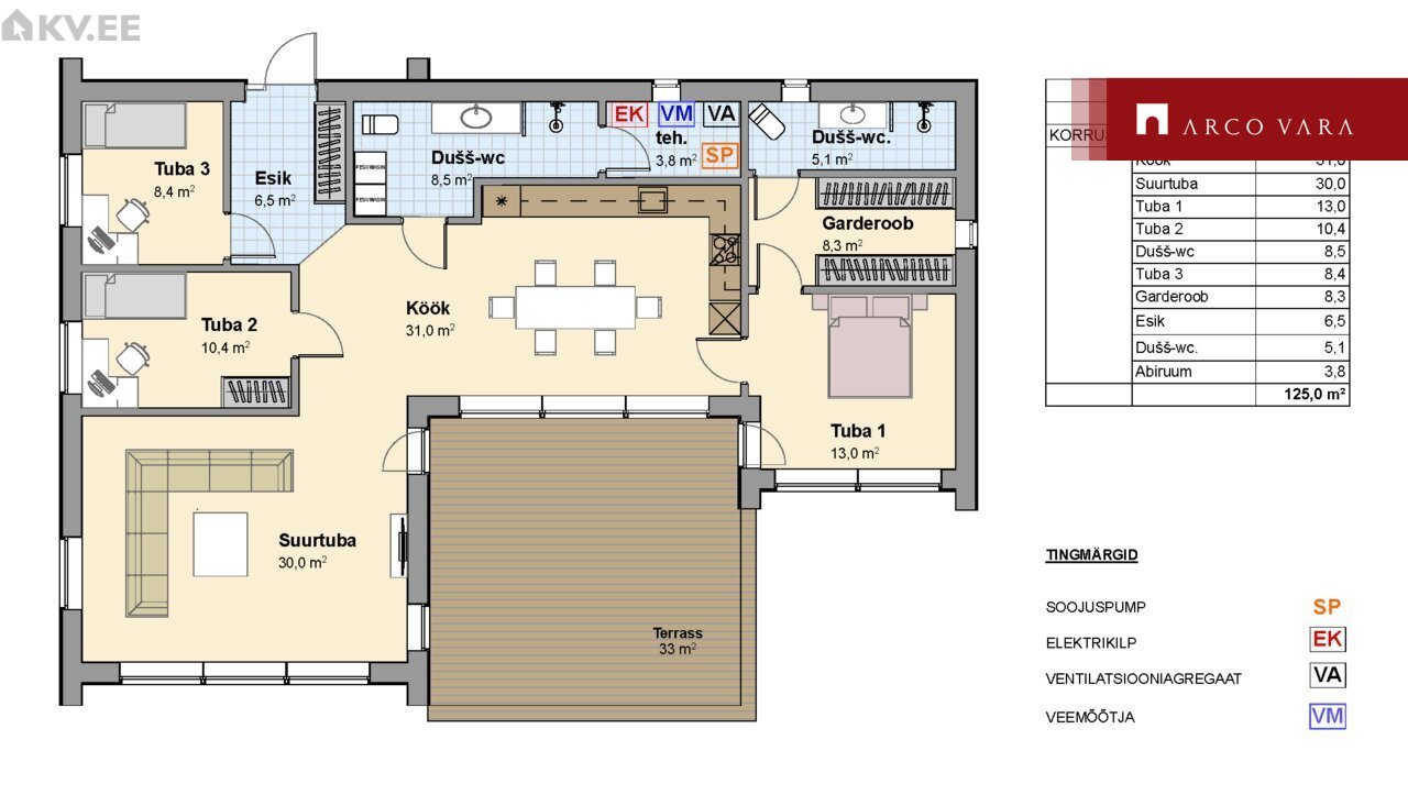
NUMBRILISED NÄITAJAD: vaata planeeringt
• Kõrged laed: Elutoas lae kõrgus 5.8m, ülejäänud majas 2.9m;
• Ühekordne hoone;
• 3 magamistuba;
• 2 tualettruumi;
• 2 dušširuumi;
• Garderoob;
• Suur terrass 40m2;
• Suur pööning 30m2;
• Maja kogupind 158 ruutmeetrit, millest elamispind 125 ruutmeetrit;
• Krundi suurus 1203 ruutmeetrit;
• Lisaks veel krunt Aruküla tee 95A - 1159m2, ehk kokku 2362m2;
EHITUSINFO
Maja kandevkonstruktsioon koosneb BAUROC Ecoterm 375 plokkidest.
Katuse katteks on PUR Granite HDX (paksus 0,6 mm), pinnakatte värvikihi paksus on 55 mikronit, tehniline garantii on 50 aastat.
Välisfassaad on voodrilaud (eritellimus) puitlaudisest.
Siseviimistluses on kasutatud naturaalseid pastelseid toone, mida on lihtne hooldada.
Põrand on kaetud kauni 4-lipilise tamme naturaalparketiga.
Hoonel on kolmekordse klaaspakettiga energiasäästlikud aknad.
San-ruumides on kasutatud neutraalsete toonidega keraamilisi plaate.
Vannitubades on Balteco mööbel ja valamud.
Santehnika on tootjatelt Gustavsberg, Oras ja Hansgrohe.
Ehitaja: Imper OÜ tegevusluba EEH011368 ja TEL003355
TEHNILISED LAHENDUSED
Maja kütteks on maaküte/maasoojuspump vesipõrandaküttega tootjalt Daikin.
Tsentraalne vee- ja kanalisatsiooni ühendus.
Hoone elektri peakaitse 3x16 A.
Ventilatsiooniks on kasutatud soojustagastusega ventilatsoonimasinat Saksamaa tootjalt Zehnder, mille valikul pöörati suurt tähelepanu energiaefektiivsusele ja töökindlusele.
Zehnder ventilatsiooniseadmes on kasutusel parima soojustagastusega vastuvoolu plaatsoojusvahetid ja energiasäästlikud EC ventilaatorid.
See on maja, mille ülalpidamiseks kuulub kõigest 1-4 eur päevas!
PARKIMINE
Parkimine maja ees tänavakiviga kaetud alal (210m2), mis mahutab kuni 4 autot.
ÕUEALA JA HOOV
Elutoast pääseb suurele 40 m2-le terrassile, millelt avaneb vaade õuealale, mille suurus on (2362 m2).
Hoovi perimeetrile on istutatud ca 300 elupuud.
Sissesõidule paigaldatud liugvärav koos automaatikaga.
Majaesisele sissesõiduteele on paigaldatud tänavakivi.
Videovalve valmidus. Vajadusel aitame paigaldusega.
PIIRKOND
Lähedal asuvad kõik eluks vajalik:
- Tallinnast ~ 10 min kaugusel;
- Jüri liivarand / Vaskjala ujumiskoht ~ 4 min kaugusel;
- Jüri Tervisekeskus / perearstid (apteek) ~ 3,7km
- Jüri Spordihoone koos ujulaga ~ 3,7km
- Lenne Sulgpallikeskus ~ 3km
- Rae Kultuurikeskus ~ 3km;
- Jüri 4 lasteaeda ~ 3-4km;
- Jüri Gümnaasium ~ 3,7km
- bussipeatus väga lähedal (mõne minuti kaugusel): 135, 135A, 135C
- toidupoed: ~ 3,7km Coop (apteek, lillepood), Grossi ~ 3,2km;
- Jüri kirik ~ 4,1km
- Jüri Terviserajad ~ 4,1km
- kergliiklusteed - väga lähedal.
Lisaküsimuste korral võtke kindlasti ise julgesti ühendust ja lähme koos vaatama!
Viimati muudetud: 2025-10-28 20:38:37
Küsi maaklerilt
Maie Sedrik
Usaldusväärne kinnisvaramaakler aastast 2004
Maakler
| Mobiil | +372 5645 4682 |
| Telefon | +372 651 3399 |
| Keeled | ![]() ![]() ![]() |
| maie.sedrik@arcovara.ee | |
| Vaata maakleri objekte (15) | |
Sarnased objektid
-
MajaRohkem infotMerevaatega 4-toaline maja Vii...Kimsi tee 4, Pringi küla, Viimsi vald, Harju maako...
- 4 Tuba
- 241.50 m²
- ID338564
Rätsepa tee 29, Lähtse küla, Kiili vald, Harju maa...
- 6 Tuba
- 177.20 m²
Taganõmme tee 27, Muuga küla, Viimsi vald, Harju m...
- 4 Tuba
- 82.00 m²
Raudtee 77, Nõmme linnaosa, Tallinn, Harju maakond...
- 3 Tuba
- 127.40 m²





















































