https://arcovara.ee/342710
Müüa maja Linnu 16, Tammelinn, Tartu linn, Tartu maakond
Detailid
| Broneeritud! | Broneeritud kuni: 2025-11-10 | 
| ID: | 342710 | www.arcovara.ee/342710 | 
| Aadress: | Linnu 16, Tammelinn, Tartu linn, Tartu maakond | 
| Tubade arv: | 4 | 
| Üldpind: | 138.00 m² | 
| Kinnistu suurus: | 1 081.00 m² | 
| Energiaklass: | Energiamärgis puudub | 
| Tehingu liik: | Müüa | 
| Objekti tüüp: | Maja | 
| Muu: | Parkett, Pakettaknad, Tsentraalne vesi, Ühistransport, Aiaga ümbritsetud, Kinnine hoov, Köögimööbel, Saun, WC eraldi, Mööbel, Dušš , Loomulik ventilatsioon, Eraldi köök, Kelder, Planeering läbi mitme korruse | 
| Korruste arv: | 2 | 
| Ehitusaasta: | 1974 | 
| Objekti staatus: | Valmis | 
| Objekti tüüp: | Kinnisasi | 
| Katastri number: | 79504:067:0007 | 
| Parkimine: | Hoovis (tasuta), Tänaval (tasuta) | 
| Hoone struktuuri tüüp: | Palkmaja | 
| Kanalisatsioon: | Tsentraalne | 
| Küte: | Tsentraalne kaugküte | 
UUS PAKKUMINE HINNATUD PIIRKONNAS!
Maja Lisa lemmikutesseHind
| Hind | 269 000 € | 
| m² hind | 1949.3 € | 
Kirjeldus
Müüa rahuldavas seisukorras olev eramu tartlaste poolt hinnatud Tammelinna linnaosas.
PLANEERING
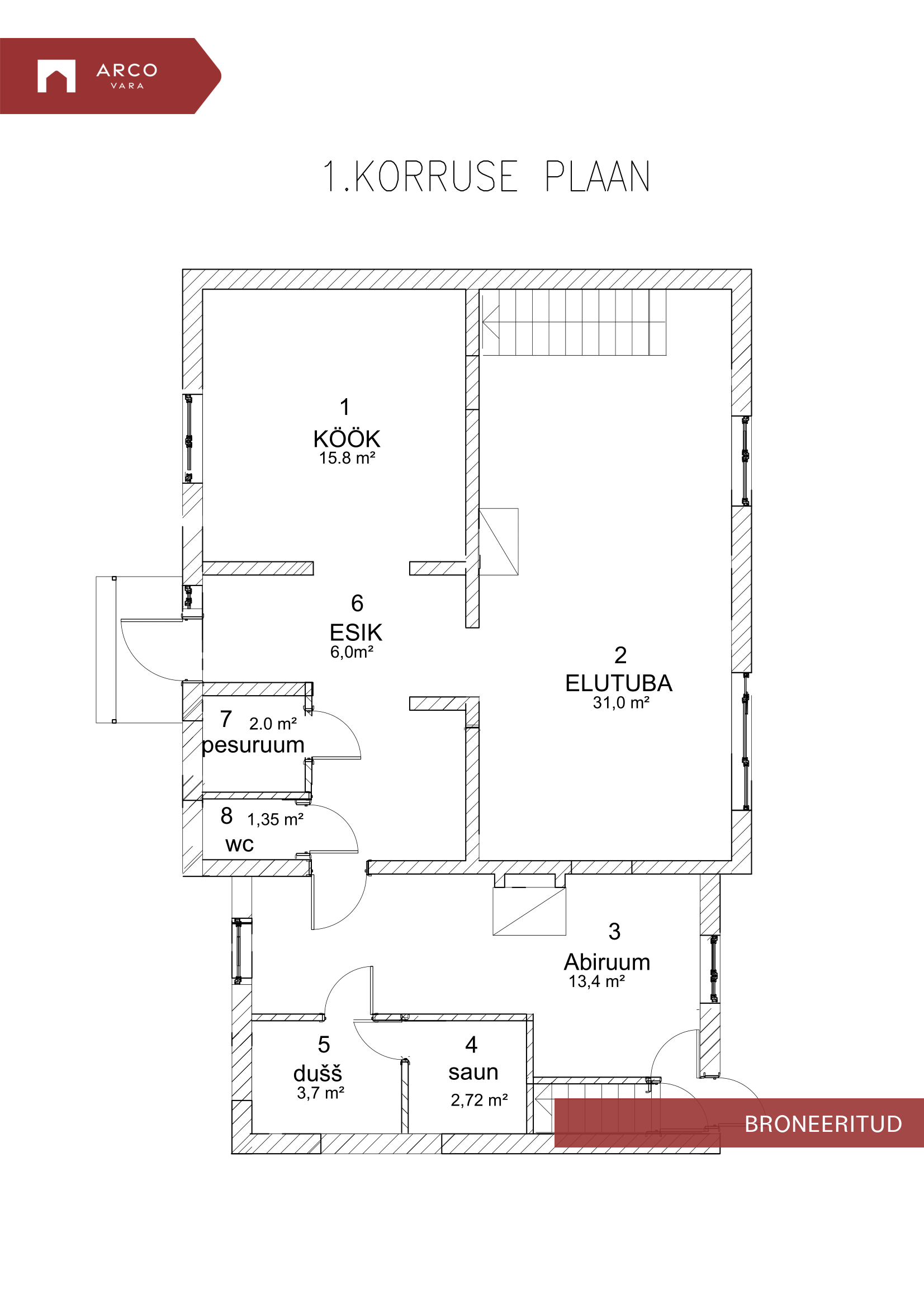
I korrus: esik, köök, avar elutuba, saunaruumid, wc ja majapidamisruum. Esimesel korrusel pinda kokku 76 m²
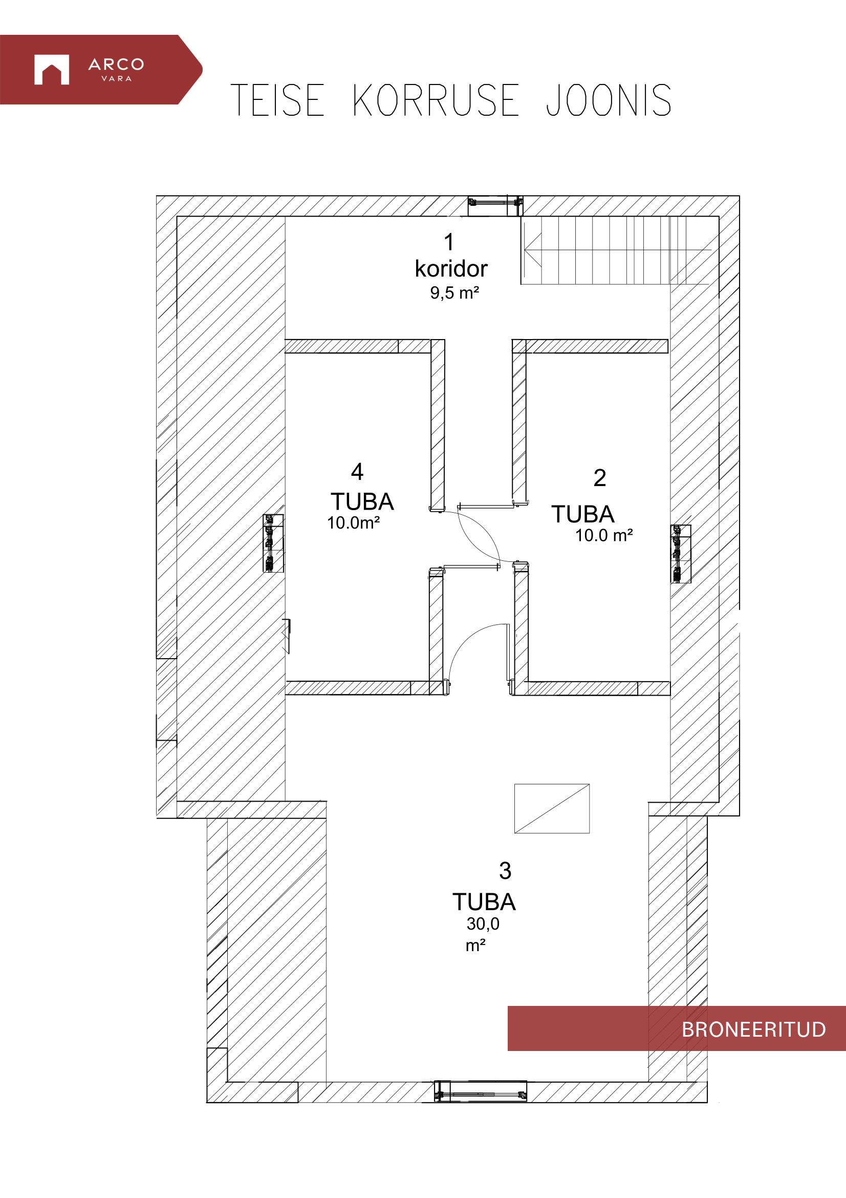
II korrus: kolm magamistuba tuba ning pisemat torti trepihall. Teise korruse pind 59,5 m².
Keldrikorrusel kütte- ja hoiuruumid pinnaga 13,9 m².
Maja lõunapoolsel küljel on avar katusega terrass. 
Majal on kaks sissepääsu. 
TEHNOSÜSTEEMID
Majas on linna tsentraalne vee- ja kanalisatsiooni süsteem.
Maja soojendab linna tsentraalne kaugküte.
SEISUKORD
Maja vajab küll kaasajastamist aga kuna jooksvat värskendust on teostatud regulaarselt , siis on üldmulje hea. Kõik aknad vahetatud.
KINNISTU
Kinnistu on korralikult hooldatud ja haljastatud ning piiratud aiaga.
Elamu taha asuvasse siseõue ja terrassile paistab päike praktiliselt terve päev.
ÜMBRUS
Läheduses asuvad on Aardla Selver, Lõunakeskus, Tamme Gümnaasium, Variku kool, mitmed lasteaiad ning ehituskauplused.
Bussipeatused ja rongipeatus on mõne minuti tee kaugusel.
Vastavalt www.ehr.ee andmetele sellel hoonel energiamärgis puudub
Viimati muudetud: 2025-11-01 12:36:34
Küsi maaklerilt
Anne Heinlo
Usalda spetsialisti - 24 aastat kinnisvaras! Kliendilemmik 2023
Vanemmaakler
| Mobiil | +372 508 3406 | 
| Telefon | +372 744 2218 | 
| Keeled | ![]() ![]()  | 
| anne.heinlo@arcovara.ee | |
| Vaata maakleri objekte (28) | |
Sarnased objektid
- 
MajaRohkem infotKORRALIK ELAMINE METSA ÄÄRES!...Mustametsa AÜ 19, Välgi küla, Peipsiääre vald, Ta...
- 4 Tuba
 - 89.20 m²
 
 - ID342026
 
Vana-Nuia , Tõravere alevik, Nõo vald, Tartu maako...
- 6 Tuba
 - 138.90 m²
 
Kalevi  110, Karlova, Tartu linn, Tartu maakond
- 861.30 m²
 
Risti  4, Raadi-Kruusamäe, Tartu linn, Tartu maako...
- 248.40 m²
 












































