https://arcovara.ee/344471
Müüa maja Linnu 24, Tammelinn, Tartu linn, Tartu maakond
Detailid
| ID: | 344471 | www.arcovara.ee/344471 |
| Aadress: | Linnu 24, Tammelinn, Tartu linn, Tartu maakond |
| Tubade arv: | 6 |
| Üldpind: | 126.40 m² |
| Kinnistu suurus: | 816.00 m² |
| Energiaklass: | Energiamärgis puudub |
| Tehingu liik: | Müüa |
| Objekti tüüp: | Maja |
| Muu: | Tsentraalne vesi, Ühistransport, Aiaga ümbritsetud, Kinnine hoov, Kõrvalhoone, Saun, WC eraldi, Vann, Loomulik ventilatsioon, Kelder, Planeering läbi mitme korruse |
| Korruste arv: | 2 |
| Ehitusaasta: | 1962 |
| Objekti staatus: | Vajab remonti |
| Objekti tüüp: | Kinnisasi |
| Katastri number: | 79504:061:0002 |
| Parkimine: | Tänaval (tasuta), Hoovis (tasuta) |
| Hoone struktuuri tüüp: | Palkmaja |
| Kanalisatsioon: | Tsentraalne |
| Küte: | Ahi |
UUS PAKKUMINE HINNATUD PIIRKONNAS!
Maja Lisa lemmikutesseHind
| Hind | 225 000 € |
| m² hind | 1780.1 € |
Kirjeldus
Müüa remonti vajavas seisukorras olev eramu tartlaste poolt hinnatud Tammelinna linnaosas.
PLANEERING
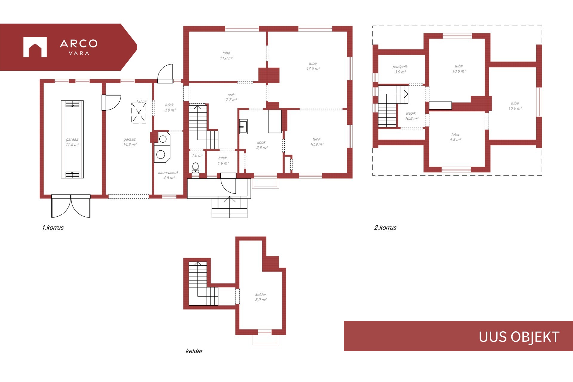
Maja üldpind on 126,4 m², millest köetavat pinda on 88,4 m².
I korrus: esik, köök, söögituba, elutuba, tuba, saunaruumid, wc, tagumine tuulekoda ning kaks garaaž'i.
Esimese korruse pinda kokku 96,1 m²
II korrus: kolm tuba, kaks väikest panipaika ning väike trepihall.
Teise korruse pind kokku 31,6 m².
Keldrikorrusel hoiuruum pinnaga 8,9 m².
Majal on kaks sissepääsu.
TEHNOSÜSTEEMID
Majas on ahiküte ning linna tsentraalne vee- ja kanalisatsiooni süsteem.
Majja tuleb interneti valguskaabel.
SEISUKORD
Maja vajab suuremat remonti aga on samas siiski kasutatav ka sellisena nagu ta on.
Kõik aknad ja uksed, elektrjuhtmestik ning vee- ja kanalisatsioonitorustik on algupärased.
Maja katusekate on uuendatud.
KINNISTU
Kinnistu on haljastatud ning piiratud aiaga.
Elamu taha asuvasse siseõue ja terrassile paistab päike praktiliselt kogu päeva.
ÜMBRUS
Läheduses asuvad on Ringtee Selver, Lõunakeskus, Tamme Gümnaasium, Variku kool, mitmed lasteaiad ning ehituskauplused.
Bussipeatus on mõne minuti tee kaugusel.
Vastavalt www.ehr.ee andmetele sellel hoonel energiamärgis puudub
Viimati muudetud: 2026-02-27 20:13:25
Küsi maaklerilt
Anne Heinlo
Usalda spetsialisti - 24 aastat kinnisvaras! Kliendilemmik 2023
Vanemmaakler
| Mobiil | +372 508 3406 |
| Telefon | +372 744 2218 |
| Keeled | ![]() ![]() |
| anne.heinlo@arcovara.ee | |
| Vaata maakleri objekte (19) | |
Sarnased objektid
-
MajaRohkem infotUus, A-energiaklassiga kivimaj...Lillemäe 35, Lemmatsi küla, Kambja vald, Tartu ma...
- 4 Tuba
- 177.20 m²
- ID343155
Lubjamäe vkt 16, Aovere küla, Tartu vald, Tartu m...
- 3 Tuba
- 112.00 m²
- 3.Korrus
Mustametsa AÜ 19, Välgi küla, Peipsiääre vald, Ta...
- 4 Tuba
- 89.20 m²
Kalevi 110, Karlova, Tartu linn, Tartu maakond
- 861.30 m²






























