https://arcovara.ee/344518
Müüa büroopind Liivalaia 29, Kesklinn (Tallinn), Tallinn, Harju maakond
Detailid
| ID: | 344518 | www.arcovara.ee/344518 |
| Aadress: | Liivalaia 29, Kesklinn (Tallinn), Tallinn, Harju maakond |
| Tubade arv: | 3 |
| Üldpind: | 70.00 m² |
| Kinnistu suurus: | 1 221.00 m² |
| Energiaklass: | Energiamärgis puudub |
| Tehingu liik: | Müüa |
| Objekti tüüp: | Büroo, Majutus, Teenindus |
| Muu: | Elekter, Tsentraalne vesi, Ühistransport, Lift, TV, Mööbli võimalus, Internet, Trepikoda lukus, Dušš , Eraldi köök, Kelder |
| Korruste arv: | 7 |
| Korrus: | 1 |
| Ehitusaasta: | 1976 |
| Objekti staatus: | Valmis |
| Objekti tüüp: | Kinnisasi |
| Katastri number: | 78401:105:0001 |
| Parkimine: | Tänaval(tasuline) |
| Kanalisatsioon: | Tsentraalne |
| Küte: | Tsentraalne kaugküte |
Kiire vabastamine - võtmed kätte kohe peale lepingut!
Büroo Vaata ka videot Lisa lemmikutesseHind
| Hind | 219 000 € |
| m² hind | 3128.6 € |
Kirjeldus
UUS HIND!
TULE MINUGA VIDEOTUURILE:
https://youtu.be/V40YKPRgqgQ
STUUDIOKORTER
Müüa läbimaja planeeringuga (akendest vaade nii maja ette kui ka maja taha) kesklinna esimese korruse 3-toaline stuudiokorter (MITTEELURUUM ehk ÄRIPIND), kus klaasitud suur rõdu (ehk lodža) on kogu avatud ruumi / elutoa laiuses.
Viimati tehti remonti ~2005, seega kogu korter vajab värskendamist ja uuendamist, kuid otseslt elamist ei takista.
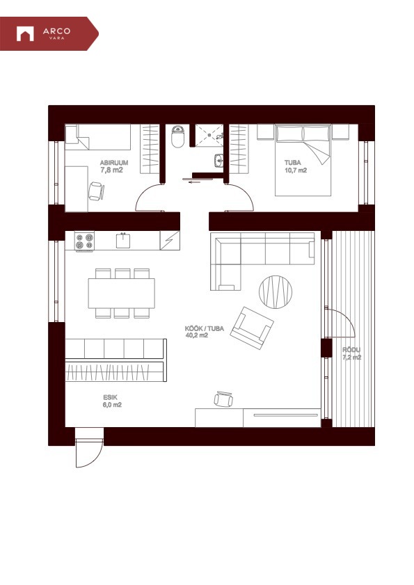
Avara planeeringuga korteri koosseisu kuulub: vaata korteri PLAANE (viimased pildid)
- suur avatud ruum / elutuba (tulevikus võib seal olla ka köök): vaade nii maja ette kui ka maja taha;
- duširuum koos tualetiga;
- ruum 1: vaade maja ette;
- ruum 2 (7,9m2): vaade maja taha, võimalus ruum kohandada ümber köögiks, kuna on olemas kanalisatsiooni valmidus (kanalisatsiooni ja vee väljavõtted).
- korteri plaan nr 1 - olemasolev plaanilahendus
- korteri plaan nr 2 - varajasem kontori plaanilahendus
- korteri plaan nr 3 - võimalik korteri plaanilahendus nr 1
- korteri plaan nr 4 - võimalik korteri plaanilahendus nr 2
- korteri plaan nr 5 - potensiaalne VK (vee ja kanali) muudatus
KORTERMAJA
Majas olemas kõik erinevad interneti- ja teleteenuste pakkujad (olemas valguskaabel).
Trepikojad on puhtad ja korras, naabrid rahulikud ja vaiksed.
Tegus ja toimekas KÜ, plaanis lähiajal võtta ette kogu maja täisrenoveerimine - renoveerimisprojekt on juba valmis (vajadusel küsi ise lisainfot selle kohta).
KOMMUNAALKULUD
Suvel keskmisel 100€ ja talvel 200€
Elekter vastavalt tarbimisele, kuid enamasti on arved 50€ aastaringselt.
PARKIMINE
Eraldi parkimiskohta korteri juurde ei kuulu, kuid parkida on võimalik maja ees ja ümbritsevatel tänavatel näiteks kesklinna elaniku parkimiskaardi alusel. Kesklinna elaniku parkimistasu on 120€ aastas, ehk 10€ kuus.
Täpsem info: https://www.tallinn.ee/et/teenused/elaniku-parkimistasu-soodustus
ASUKOHT
Suurepärane asukoht kesklinnas, kus kõik eluks vajalik on ainult jalutuskäigu kaugusel.
NB! Helista ja lähme koos vaatama - kindlasti leiame kiiresti just teile sobiva aja!
Viimati muudetud: 2026-02-28 21:42:20
Küsi maaklerilt
Maie Sedrik
Usaldusväärne kinnisvaramaakler aastast 2004 ja kliendilemmik 2025
Maakler
| Mobiil | +372 5645 4682 |
| Telefon | +372 651 3399 |
| Keeled | ![]() ![]() ![]() |
| maie.sedrik@arcovara.ee | |
| Vaata maakleri objekte (20) | |
Sarnased objektid
-
BürooRohkem infotKommunaalid hinnas, tasuta par...Katusepapi 4, Lasnamäe linnaosa, Tallinn, Harju m...
- 1 Tuba
- 35.62 m²
- 8.Korrus
- ID340714
Mustjuure 2-25, Kristiine linnaosa, Tallinn, Harj...
- 2 Tuba
- 41.60 m²
- 1.Korrus
Tuukri 52, Kesklinn (Tallinn), Tallinn, Harju maa...
- 5 Tuba
- 139.50 m²
- 1.Korrus
Vana-Narva mnt.20b, Lasnamäe linnaosa, Tallinn, Ha...
- 625.00 m²



























