Laine 6a kodud Vaata kõiki projekte Vana-Sauga 2

Meloni 33, Tartu - Uus kortermaja Emajõe kaldal

Müügiinfo: Anne Heinlo
Müügiinfo: Maris Kuklane
Tutvu lähemalt
Helista: +372 508 3406 +372 5333 3999

Meloni 33, Tartu - Uus kortermaja Emajõe kaldal

Uus kortermaja Emajõe ääres, korterid on valmis

Üles

Meil on hea meel teatada, et meie müügipakkumiste hulka on lisandunud uued, hea planeeringuga ning energiasäästlikud A-klassi korterid Supilinnas. See on ideaalne elukoht neile, kes hindavad loodust ja vaikust, kuid samal ajal soovivad nautida kõiki kesklinna mugavusi.

Korterid asuvad vaikses piirkonnas, kus autoteed jäävad majast kaugemale, mistõttu liiklusmüra siia ei kostu. Selle asemel saab nautida Supilinna promenaadi põlispuudelt kostuvat linnulaulu – siin elades on tunne, nagu elaksid pargis.

Kortermaja koosneb kümnest 2- ja 3-toalisest korterist, millest kõigil on kas terrass või rõdu, mis toimivad suvisel ajal suurepäraselt eluruumide pikendusena. Lisaks on valminud ka näidiskorter, mis annab aimu korterite kvaliteedist ja sisekujundusest.

Tule ja tutvu oma uue koduga Supilinnas – koht, kus loodus ja linnamugavused saavad üheks!

 

EHITUSINFO

Üles

 

Hoone on rajatud betoonist vaivundamendile. Kandvad seinad on laotud Columbia kivist. Vahelaed raudbetoonpaneelidest.
Välisviimistluseks on kasutatud klaasi, puitu ja värvitud krohvi.
Aknad on 3x klaaspaketiga.
Maja välisuksed on alumiiniumraamides ja klaaspaketiga; korterite uksed EI 30 puidust.
Sisetrepid on betoontrepid teraspiiretega. Välistrepid ja pandus betoonist. Rõdude piirded on metallkonstruktsioonidel.
Trepikoja seinad ja laed on värvitud.
Hoone kütteks on tsentraalküte.
Hea sisekliima tagab soojustagastusega ventilatsioon.

SISEVIIMISTLUS

Üles

Korterite seinad on värvitud heledates toonides, luues avara ja valgusküllase atmosfääri. Põrandatel on naturaalne 1-lipiline parkett, mis lisab ruumidele soojust ja elegantsi. Märgruumid on plaaditud ning paigaldatud on kvaliteetne sanitaartehnika.

KINNISTU

Üles

Parkimisalad ja kõnniteed on kombineeritud asfaltkattega ning kõnnitee kividega.
Kinnistu on piiratud aiaga, tagades turvalisuse ja privaatsuse kõigile elanikele. Hoovis on olemas rattaparkla, kus saate mugavalt oma jalgrattaid hoida. Iga korteri juurde kuulub ka parkimiskoht. Lisaks on hoovis lastele mänguväljak, kus nooremad pereliikmed saavad turvaliselt mängida ja aega veeta.

 

Asukoht

Üles
Linn Tartu linn
Linnaosa Tartu linn
Tänav Meloni
Maja nr. 33
Uus kortermaja Emajõe kaldal

Hinnatabel

Sorteerimiseks kliki tabeli tulba nooltel:

Vaata kogu tabelit
Korteri nr. Aadress Korrus Tubade arv M2 Rõdu M2 Terrass M2 Plaan Hind Staatus Märkus
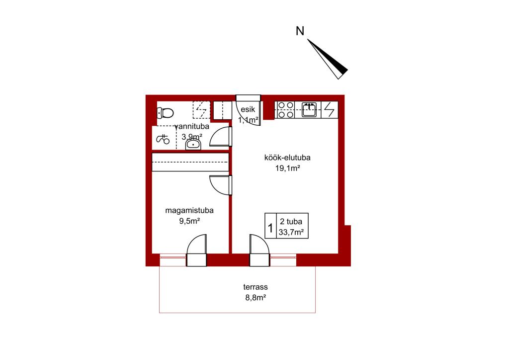
1 Meloni 33 1 2 33.70 8.8 vaata 168 000
stdClass Object
(
    [id] => 342024
    [floor_nr] => 1
    [broker_id] => 178934602
    [apartment_nr] => 1
    [nr_rooms] => 2
    [area_size] => 33.70
    [transaction_price] => 168000.00
    [is_booked] => 0
    [land_size] => 1338.00
    [cadastral_number] => O:8:"stdClass":1:{s:15:"cadastralNumber";s:14:"79513:002:0023";}
    [street] => Meloni
    [house_nr] => 33
    [info_comment] => 
    [info_balconies] => {"balcony":{"size":{"_":8.8,"unit":"m2"},"type":"terrace"}}
    [info_plans] => {"_":"https:\/\/avis.arcovara.ee\/web\/avis\/object?p_p_id=relatedfiles_WAR_relatedfilesportlet&p_p_lifecycle=2&a=v&uuid=3a2ce1eb-a551-4785-b981-607e8ab680b4&v=1&t=1761403693392","title_et":"","title_en":"","title_fi":"","title_ru":"","floor":1,"format":"jpg","size":154950}
    [status_descriptor] => 
    [booked_until] => 0000-00-00
    [cache] => web
)
vaba
10 Meloni 33-10 2 2 37.5 4.9 -
stdClass Object
(
    [id] => 325443
    [floor_nr] => 2
    [apartment_nr] => 10
    [nr_rooms] => 2
    [area_size] => 37.5
    [land_size] => 1338
    [cadastral_number] => O:8:"stdClass":1:{s:15:"cadastralNumber";s:14:"79513:002:0023";}
    [street] => Meloni
    [house_nr] => 33-10
    [cache] => avis
    [booked_until] => 
    [info_balconies] => {"size":{"_":4.9,"unit":"m2"},"type":"open"}
    [transaction_price] => 216000
    [is_booked] => sold
)
müüdud
2 Meloni 33 1 2 41.60 9.4 vaata 223 000
stdClass Object
(
    [id] => 333757
    [floor_nr] => 1
    [broker_id] => 178934602
    [apartment_nr] => 2
    [nr_rooms] => 2
    [area_size] => 41.60
    [transaction_price] => 223000.00
    [is_booked] => 0
    [land_size] => 1338.00
    [cadastral_number] => 
    [street] => Meloni
    [house_nr] => 33
    [info_comment] => {"_":"vaade Emaj\u00f5ele","language":"EST"}
    [info_balconies] => {"balcony":{"size":{"_":9.4,"unit":"m2"},"type":"terrace"}}
    [info_plans] => {"_":"https:\/\/avis.arcovara.ee\/web\/avis\/object?p_p_id=relatedfiles_WAR_relatedfilesportlet&p_p_lifecycle=2&a=v&uuid=5a992d58-ace3-481f-9f3b-e96447b84384&v=1&t=1762727289487","title_et":"","title_en":"","title_fi":"","title_ru":"","floor":1,"format":"jpg","size":151853}
    [status_descriptor] => 
    [booked_until] => 0000-00-00
    [cache] => web
)
vaba
vaade Emajõele
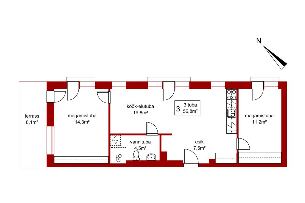
3 Meloni 33 1 3 56.80 8.2 vaata 319 000
stdClass Object
(
    [id] => 337306
    [floor_nr] => 1
    [broker_id] => 11493
    [apartment_nr] => 3
    [nr_rooms] => 3
    [area_size] => 56.80
    [transaction_price] => 319000.00
    [is_booked] => 0
    [land_size] => 1338.00
    [cadastral_number] => O:8:"stdClass":1:{s:15:"cadastralNumber";s:14:"79513:002:0023";}
    [street] => Meloni
    [house_nr] => 33
    [info_comment] => {"_":"vaade Emaj\u00f5ele","language":"EST"}
    [info_balconies] => {"balcony":{"size":{"_":8.2,"unit":"m2"},"type":"terrace"}}
    [info_plans] => {"_":"https:\/\/avis.arcovara.ee\/web\/avis\/object?p_p_id=relatedfiles_WAR_relatedfilesportlet&p_p_lifecycle=2&a=v&uuid=acdc7037-362c-4801-ab68-0e48dd7f4d73&v=1&t=1761136608774","title_et":"","title_en":"","title_fi":"","title_ru":"","floor":1,"format":"jpg","size":180220}
    [status_descriptor] => 
    [booked_until] => 0000-00-00
    [cache] => web
)
vaba
vaade Emajõele
4 Meloni 33 1 2 44.40 9.3 vaata 244 000
stdClass Object
(
    [id] => 333826
    [floor_nr] => 1
    [broker_id] => 178934602
    [apartment_nr] => 4
    [nr_rooms] => 2
    [area_size] => 44.40
    [transaction_price] => 244000.00
    [is_booked] => 0
    [land_size] => 1338.00
    [cadastral_number] => 
    [street] => Meloni
    [house_nr] => 33
    [info_comment] => {"_":"vaade Emaj\u00f5ele","language":"EST"}
    [info_balconies] => {"balcony":{"size":{"_":9.3,"unit":"m2"},"type":"terrace"}}
    [info_plans] => {"_":"https:\/\/avis.arcovara.ee\/web\/avis\/object?p_p_id=relatedfiles_WAR_relatedfilesportlet&p_p_lifecycle=2&a=v&uuid=e7a4a480-d1d0-4f89-b218-8b968cfa899a&v=1&t=1762727316567","title_et":"","title_en":"","title_fi":"","title_ru":"","floor":1,"format":"jpg","size":182597}
    [status_descriptor] => 
    [booked_until] => 0000-00-00
    [cache] => web
)
vaba
vaade Emajõele
5 Meloni 33 1 2 40.00 8.2 vaata 223 000
stdClass Object
(
    [id] => 333827
    [floor_nr] => 1
    [broker_id] => 178934602
    [apartment_nr] => 5
    [nr_rooms] => 2
    [area_size] => 40.00
    [transaction_price] => 223000.00
    [is_booked] => 0
    [land_size] => 1338.00
    [cadastral_number] => 
    [street] => Meloni
    [house_nr] => 33
    [info_comment] => 
    [info_balconies] => {"balcony":{"size":{"_":8.2,"unit":"m2"},"type":"terrace"}}
    [info_plans] => {"_":"https:\/\/avis.arcovara.ee\/web\/avis\/object?p_p_id=relatedfiles_WAR_relatedfilesportlet&p_p_lifecycle=2&a=v&uuid=6b8cb085-c1e3-4d58-b763-28fad78224dd&v=1&t=1762727348918","title_et":"","title_en":"","title_fi":"","title_ru":"","floor":1,"format":"jpg","size":158305}
    [status_descriptor] => 
    [booked_until] => 0000-00-00
    [cache] => web
)
vaba
6 Meloni 33 2 2 31.70 3.3 vaata 188 000
stdClass Object
(
    [id] => 333829
    [floor_nr] => 2
    [broker_id] => 178934602
    [apartment_nr] => 6
    [nr_rooms] => 2
    [area_size] => 31.70
    [transaction_price] => 188000.00
    [is_booked] => 0
    [land_size] => 1338.00
    [cadastral_number] => 
    [street] => Meloni
    [house_nr] => 33
    [info_comment] => 
    [info_balconies] => {"balcony":{"size":{"_":3.3,"unit":"m2"},"type":"open"}}
    [info_plans] => {"_":"https:\/\/avis.arcovara.ee\/web\/avis\/object?p_p_id=relatedfiles_WAR_relatedfilesportlet&p_p_lifecycle=2&a=v&uuid=b6563f14-a20a-4bd3-80b3-40b2613f823b&v=1&t=1762727364015","title_et":"","title_en":"","title_fi":"","title_ru":"","floor":2,"format":"jpg","size":166109}
    [status_descriptor] => 
    [booked_until] => 0000-00-00
    [cache] => web
)
vaba
7 Meloni 33 2 2 39.20 4.8 vaata 223 000
stdClass Object
(
    [id] => 340312
    [floor_nr] => 2
    [broker_id] => 178934602
    [apartment_nr] => 7
    [nr_rooms] => 2
    [area_size] => 39.20
    [transaction_price] => 223000.00
    [is_booked] => 0
    [land_size] => 1338.00
    [cadastral_number] => O:8:"stdClass":1:{s:15:"cadastralNumber";s:14:"79513:002:0023";}
    [street] => Meloni
    [house_nr] => 33
    [info_comment] => {"_":"vaade Emaj\u00f5ele","language":"EST"}
    [info_balconies] => {"balcony":{"size":{"_":4.8,"unit":"m2"},"type":"open"}}
    [info_plans] => {"_":"https:\/\/avis.arcovara.ee\/web\/avis\/object?p_p_id=relatedfiles_WAR_relatedfilesportlet&p_p_lifecycle=2&a=v&uuid=36402890-f506-4f28-9be9-d912be42fc32&v=1&t=1761136988055","title_et":"","title_en":"","title_fi":"","title_ru":"","floor":2,"format":"jpg","size":167273}
    [status_descriptor] => 
    [booked_until] => 0000-00-00
    [cache] => web
)
vaba
vaade Emajõele
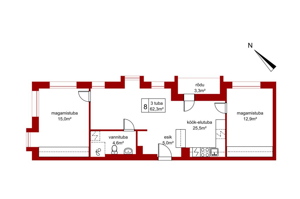
8 Meloni 33 2 3 62.30 3.3 vaata 331 000
stdClass Object
(
    [id] => 333833
    [floor_nr] => 2
    [broker_id] => 178934602
    [apartment_nr] => 8
    [nr_rooms] => 3
    [area_size] => 62.30
    [transaction_price] => 331000.00
    [is_booked] => 0
    [land_size] => 1338.00
    [cadastral_number] => 
    [street] => Meloni
    [house_nr] => 33
    [info_comment] => {"_":"vaade Emaj\u00f5ele","language":"EST"}
    [info_balconies] => {"balcony":{"size":{"_":3.3,"unit":"m2"},"type":"open"}}
    [info_plans] => {"_":"https:\/\/avis.arcovara.ee\/web\/avis\/object?p_p_id=relatedfiles_WAR_relatedfilesportlet&p_p_lifecycle=2&a=v&uuid=80a6c13e-d3c1-4e5f-bdd1-610ebb772b7c&v=1&t=1762727376543","title_et":"","title_en":"","title_fi":"","title_ru":"","floor":2,"format":"jpg","size":172938}
    [status_descriptor] => 
    [booked_until] => 0000-00-00
    [cache] => web
)
vaba
vaade Emajõele
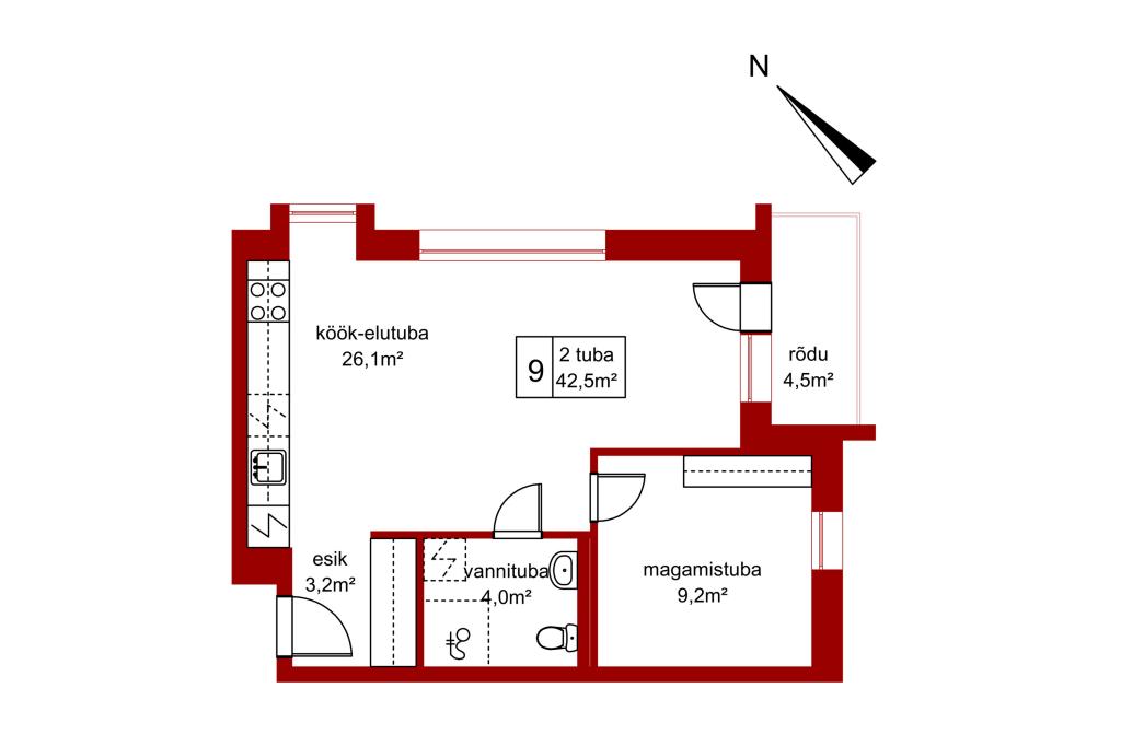
9 Meloni 33 2 2 42.50 3.3 vaata 292 000
stdClass Object
(
    [id] => 335401
    [floor_nr] => 2
    [broker_id] => 11493
    [apartment_nr] => 9
    [nr_rooms] => 2
    [area_size] => 42.50
    [transaction_price] => 292000.00
    [is_booked] => 0
    [land_size] => 1338.00
    [cadastral_number] => 
    [street] => Meloni
    [house_nr] => 33
    [info_comment] => {"_":"vaade Emaj\u00f5ele","language":"EST"}
    [info_balconies] => {"balcony":{"size":{"_":3.3,"unit":"m2"},"type":"open"}}
    [info_plans] => {"_":"https:\/\/avis.arcovara.ee\/web\/avis\/object?p_p_id=relatedfiles_WAR_relatedfilesportlet&p_p_lifecycle=2&a=v&uuid=657ebd0e-d814-43a7-bf45-00714a79393d&v=1&t=1762727390838","title_et":"","title_en":"","title_fi":"","title_ru":"","floor":2,"format":"jpg","size":179985}
    [status_descriptor] => 
    [booked_until] => 0000-00-00
    [cache] => web
)
vaba
vaade Emajõele

Plaanid ja failid

MÜÜGITINGIMUSED

Arco Vara Kinnisvrabüroo seletab Sulle lahti kõik sammud ning on Sinu kõrval ja abiks kuni tehingu lõpuni!  Arco Vara Kinnisvarabüroo klientidele kehtivad pangas soodustingimused.

Leidsid ideaalse korteri ning soovid selle osta? Võta ühendust meie esindajatega. 

Korterid on sissekolimiseks valmis, mistõttu on võimalik sõlmida kohe asjaõigusleping.

EST ENG RUS
Menüü